< img height="1" width="1" style="display:none" src="https://www.facebook.com/tr?id=1039187934806537&ev=PageView&noscript=1" />
Search
EN
Free Quote
5 ton gantry crane

Gantry Cranes

5 Ton Gantry Crane

  • Rated lifting capacity:5 ton
  • Working class:A2-A5
  • Span:10-35m
  • Lifting height:6-12m

Product Introduction

The 5-ton gantry crane is a lightweight material handling device widely used in factories, warehouses, workshops, and other locations. It is primarily used for the handling, assembly, and stacking of materials and large components. Its exceptional maneuverability and flexibility adapt to a variety of operational needs, making it particularly suitable for applications requiring flexible positioning where fixed lifting equipment is impractical.

5 ton Gantry Crane Parts

The 5-ton gantry crane consists of main beam, lifting system, trolley system, operating system, control system and other components, each of which is responsible for different functions of the crane.

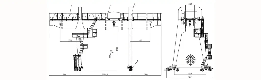
double girder gantry crane design

Main Girder Structure: The high-quality steel main girder serves as the primary load-bearing structure in a 5-ton gantry crane. Furthermore, depending on specific cargo requirements and operational conditions, engineers can configure it as a single, double, or trussed girder.
Hoisting System: The electric hoist and hook are key components of the lifting system. The electric hoist provides the lifting power, while the hook is used to load and unload materials.
Trolley System: The trolley drives the lifting mechanism horizontally along the main girder, accurately adjusting the position of the cargo within the span.
Moving System: Attached to the bottom of the outriggers, it includes wheels, running rails, a speed reducer, and a drive motor. It drives the crane longitudinally along the rails, enabling wide-area operations.
Control System: 5-ton gantry cranes are typically controlled by a wireless remote control and a cab. The wireless remote control enables remote control, ensuring safety and efficiency. Technicians can also control the crane from the cab to perform more complex operations.

Types Of 5-Ton Gantry Cranes

Different scenarios and different materials have different lifting requirements. There are many types of 5-ton gantry cranes. According to different functions and designs, they can be divided into the following types:

5-ton single-girder gantry crane

The single-beam structure is simple, occupies a small area, has light weight, small wheel pressure, low cost and reliable performance, and is suitable for small and medium-sized workshops, warehouses and other scenarios.

5-ton double-girder gantry crane

Double-girder gantry cranes incorporate two parallel main beams and employ a motorized trolley that travels along these beams to facilitate horizontal material movement. Additionally, operators can equip these cranes with specialized lifting devices—including grabs and electromagnetic chucks—which significantly improve handling efficiency for materials such as slag or steel. As a result, they are widely adopted across demanding environments like steel mills, construction sites, and shipyards.

5 ton semi-gantry crane

One end of the running track attaches directly to a wall or factory column, while the other end incorporates a support leg, which together help save both track and foundation costs. Moreover, this design offers high positioning accuracy and allows users to customize corrosion or dustproof features according to their needs. As a result, it is widely used across small and medium-sized warehouses, logistics operations, workshop production lines, as well as light industry and automobile manufacturing.

5-ton truss gantry crane

The main beam is a hollow truss structure with strong wind resistance, light weight and a wide operating range. It has excellent load-bearing capacity and stability, and is particularly suitable for ports, coastal areas and other windy areas.

5 ton portable gantry crane

Equipped with universal wheels with braking function, it can be flexibly moved on different floors. It is light weight, low cost, quick to assemble and disassemble, adjustable in height and span, and does not require a fixed foundation. It is suitable for temporary maintenance and cargo transshipment in small workshops.

Specification

Parameter nameRegular range
Rated lifting capacity5 tons
Span10-35 meters
Lifting height6-12meters
Job LevelLevel A3- A5
Lifting speed0.8-8m/min
Trolley running speed10-37m/min
Wheel diameterΦ270-Φ500mm
Power supply modeThree-phase AC, 380 V , 50 Hz

Customized 5-ton gantry crane

Weihua Crane Machinery specializes in providing customers with customized gantry crane lifting solutions to meet their specific needs. We offer modular designs to best meet our customers' specific needs.

  • Lifting capacity: 5 tons (customizable with 2.3-ton and 5.3-ton options)
  • Span: Adjustable to your needs (typically 5 to 35 meters)
  • Lifting height: Customizable (6 to 24 meters)
  • Control options: Remote/cab-mounted
  • Lifting speed: Customizable (0.8 to 8 meters/minute)

If you have any specific needs or require further assistance, please feel free to contact our team of experts. We will provide you with customized solutions and professional support.

Gantry crane manufacturers

Get In Touch

Please feel free to leave a message. We will reply in 24 hours.

Please specify your requirement by referring to the following aspects:

  • Which crane product do you need?
  • What is the maximum lifting capacity (in tons) required for your project?
  • Could you specify the lifting height (in meters) needed?
  • Can you provide details on the working environment, such as ground conditions, space limitations, and any obstacles?
  • What is the expected frequency of use and the duration of the project?

Related Products

Want to Customize Your Crane Solutions with Us?

Email

[email protected]

𐀟

Message

Whatsapp

+8615803735886

Submit Request

ro_RORO